May the Luck of the Irish be with YOU! Move into a Select Paradise Point Home by March 31st Get your 1st Month's Rent Free!
Call (888) 550-2144 to Learn More!
Find a Home
Neighborhoods and Floor Plans
Features & Amenities
Photo Gallery
Current Residents
Active Duty - Owner's Informal Dispute Resolution
Online Payments
Resident Services/Maintenance Request
Utilities
Resident Resources
Community News
Documents & Forms
Bill of Rights
New Residents
Application
Documents and Forms
Helpful Links and Information
Contact Us
Community Contact List
Our Commitment
Who We Are
Careers
Graham (Capehart)
Ready to Move in?
Apply Now!
Home
Neighborhoods and Floor Plans
Paradise Point I
Graham (Capehart)
Back
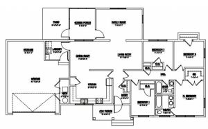
Graham (Capehart)
Request More Information
Submit an Application
1720
ft
2
Beds
4
Baths
2
Eligible Rank
O01, O02, O03, O01E, O02E, O03E, W01, W02, W03
Download floor plan PDF
×