Home For the Holidays: Move into a Select Paradise Point Home in December Get $1,000 Off January's Rent!
Call (888) 550-2144 to Learn More!
Find a Home
Neighborhoods and Floor Plans
Features & Amenities
Photo Gallery
Current Residents
Active Duty - Owner's Informal Dispute Resolution
Online Payments
Resident Services/Maintenance Request
Utilities
Resident Resources
Community News
Documents & Forms
Bill of Rights
New Residents
Application
Documents and Forms
Helpful Links and Information
Contact Us
Community Contact List
Our Commitment
Who We Are
Careers
Phillips
Ready to Move in?
Apply Now!
Home
Neighborhoods and Floor Plans
Paradise Point I
Phillips
Back
Phillips
Request More Information
Submit an Application
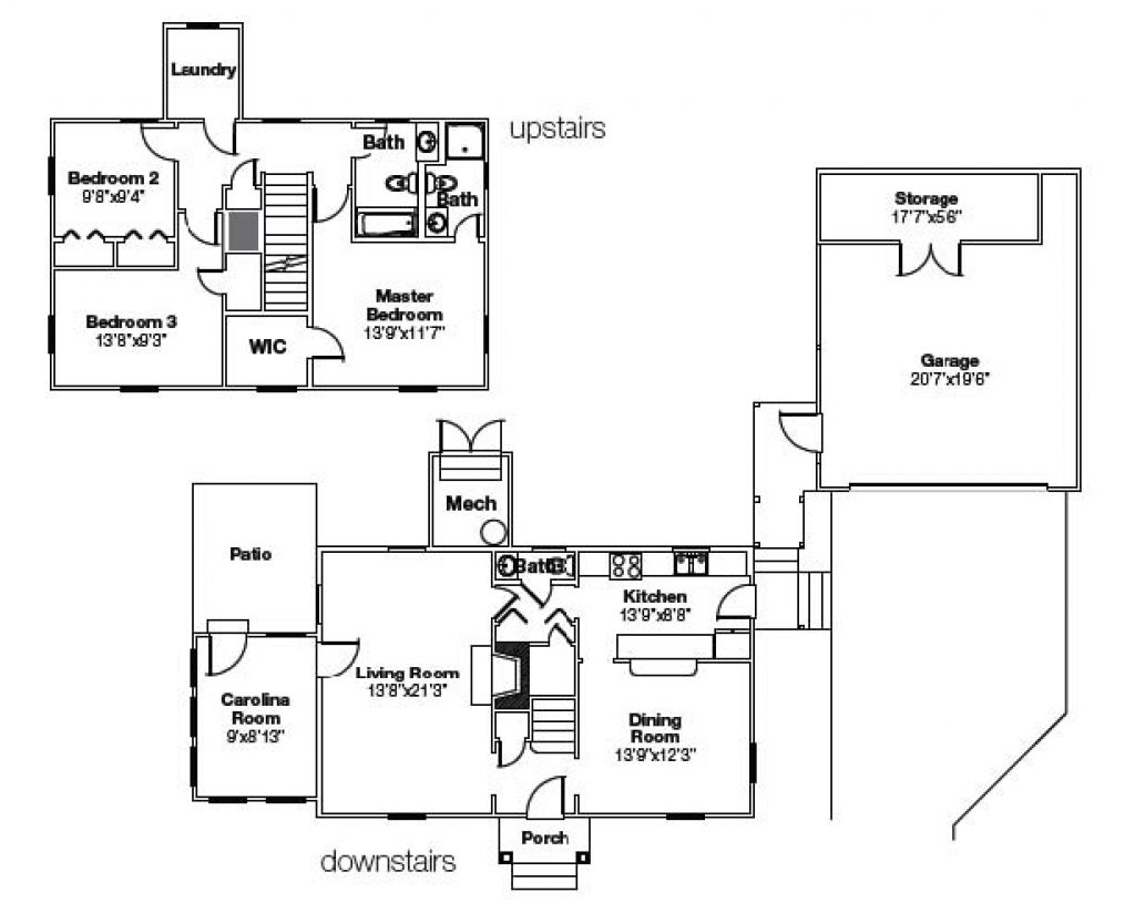
1690
ft
2
Beds
3
Baths
2.5
Eligible Rank
W03
Download floor plan PDF
×