April Showers Bring Amazing Offers Lease a Select Paradise Point Home by April 30th Get 1 Month of Rent on Us!
Call (888) 550-2144 to Learn More!
Find a Home
Neighborhoods and Floor Plans
Features & Amenities
Photo Gallery
Current Residents
Active Duty - Owner's Informal Dispute Resolution
Online Payments
Resident Services/Maintenance Request
Utilities
Resident Resources
Community News
Documents & Forms
Bill of Rights
New Residents
Application
Documents and Forms
Helpful Links and Information
Contact Us
Community Contact List
Our Commitment
Who We Are
Careers
Jackson
Ready to Move in?
Apply Now!
Home
Neighborhoods and Floor Plans
Watkins Village
Jackson
Back
Jackson
Request More Information
Submit an Application
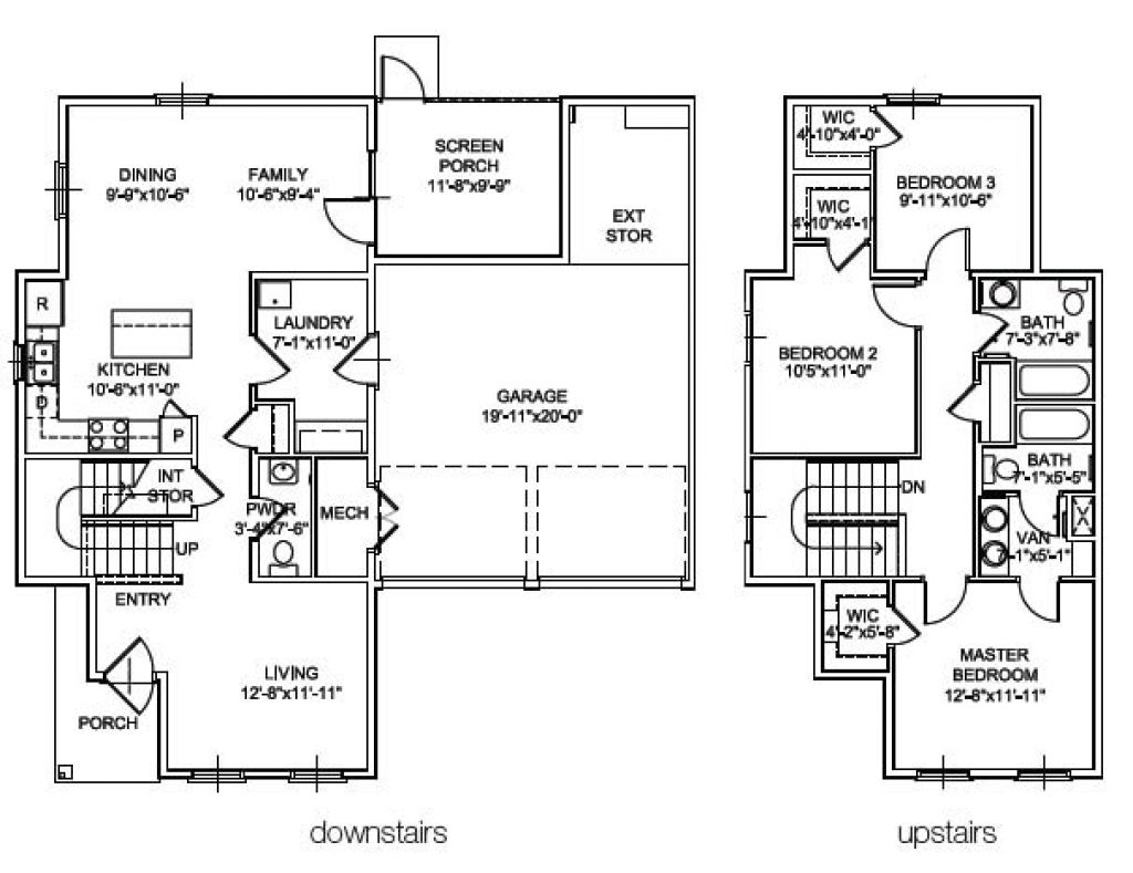
1620
ft
2
Beds
3
Baths
2.5
Eligible Rank
E01, E02, E03, E04, E05, E06, E07, E08, E09
Download floor plan PDF
×